OFEN is het onderzoeksplatform van ENOF Architectuur. Vanuit ons lab verkennen we modellen, typologieën en ruimtelijke strategieën die het samenleven en samenwerken in de stad van morgen vormgeven.

Onze aandacht gaat uit naar stedelijke thema’s die niet vanzelf een plaats vinden in de markt of in het beleid, maar wel een groeiende maatschappelijke relevantie hebben. We onderzoeken hoe nieuwe vormen van wonen, werken en delen kunnen inspelen op de veranderende demografie, op onderbelichte doelgroepen en op actuele stedelijke uitdagingen.

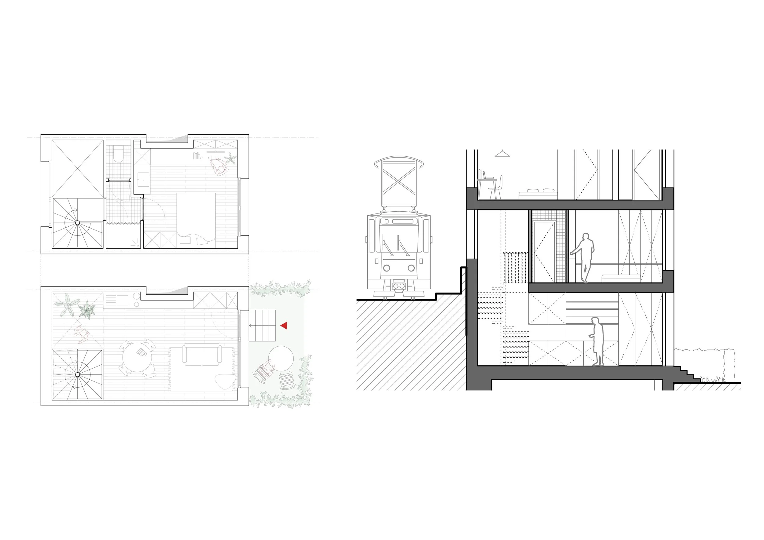
Daarnaast onderzoeken we complexe stedelijke plekken en percelen -zowel op eigen initiatief als op vraag van opdrachtgevers- vaak met een gelaagde geschiedenis of ruimtelijke beperkingen. We analyseren hoe zulke locaties op een zinvolle en toekomstgerichte manier kunnen worden ingevuld. Dit omvat ook de herbestemming van bestaande gebouwen met een hoge mate van complexiteit — projecten waarbij ruimtelijke, technische en maatschappelijke uitdagingen samenkomen.

De kennis die hieruit voortkomt, proberen we te vertalen naar concrete pilootprojecten. We koppelen onderzoek aan realisatie door geschikte locaties te identificeren, relevante partners samen te brengen en opdrachtgevers, investeerders en studiebureaus te betrekken die zich in de thematiek herkennen. Zo ontstaat een brug tussen verkenning en uitvoering.

Met ENOF lab willen we het verschil maken op meerdere niveaus:
– voor toekomstige bewoners, door kwaliteitsvolle omgevingen te creëren die afgestemd zijn op hun noden;
– voor de stad, door te werken aan zinvolle verdichting en duurzame stedelijke groei;
– en voor opdrachtgevers en ontwerpteams, door projecten te ontwikkelen die inhoudelijk voor hen relevant zijn.

OFEN positioneert zich als een kruispunt van ontwerp en onderzoek — een werkplaats waar reflectie over de stad wordt vertaald naar nieuwe vormen van stedelijkheid.