HOOFTVUNDER

GEZINSVRIENDELIJK WONEN MET COLLECTIEVE TUIN

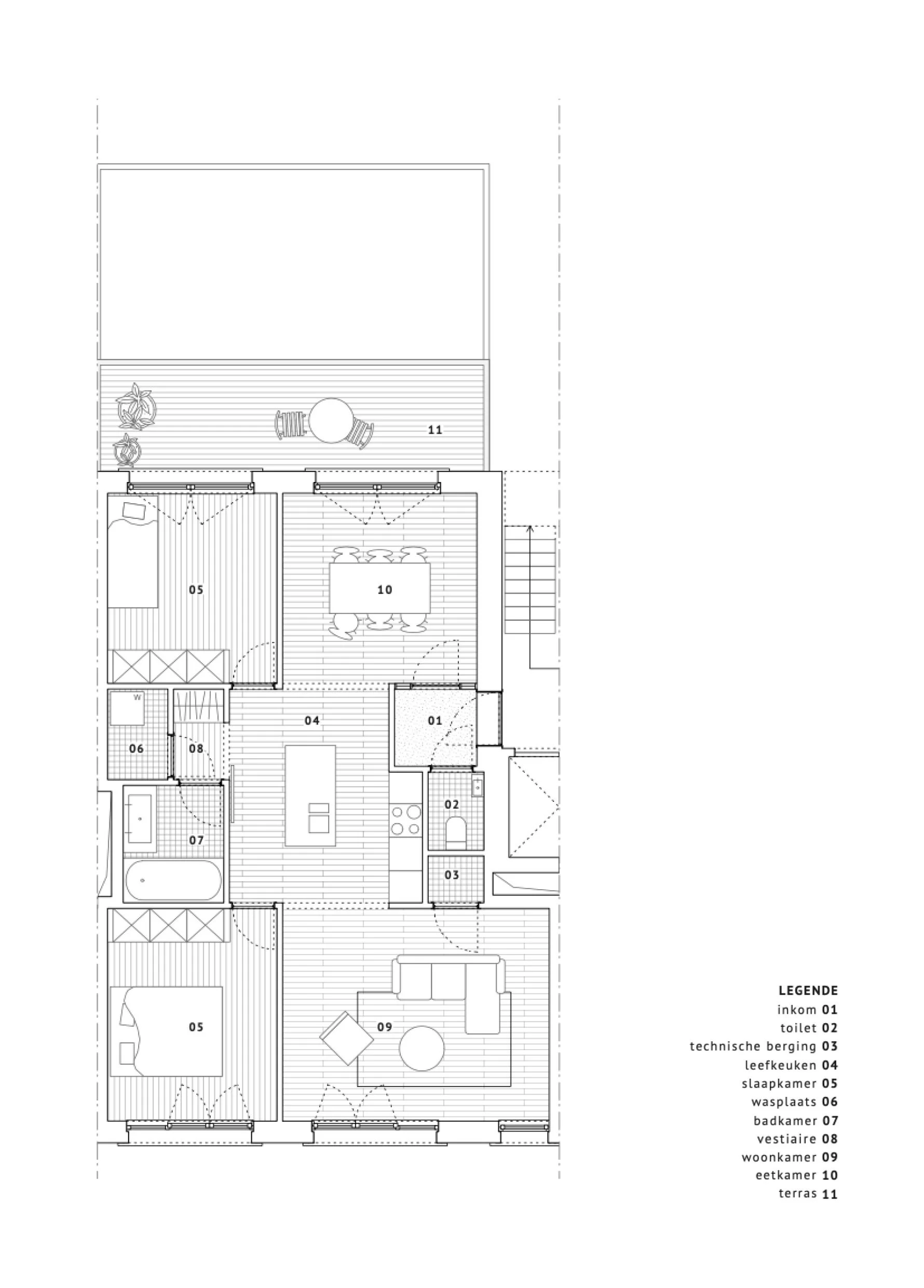
Nieuwbouw van betaalbare en gezinsvriendelijke appartementen in Deurne, Antwerpen. Met de nood aan betaalbare woningen voor gezinnen in het achterhoofd ontwierp ENOF een heldere en eenvoudige structuur die flexibel kan ingezet worden in de toekomst.

Opdrachtgever: Fullerstone

Locatie: Antwerpen

Oppervlakte bovengronds: 2.400m2

Programma: huisvesting

Tijdlijn ontwerp - vergunning: juni 2020 - mei 2025

Projectteam ENOF: Luis Zamorano Garrote, Liese Van Aert, Stijn Van Reeth

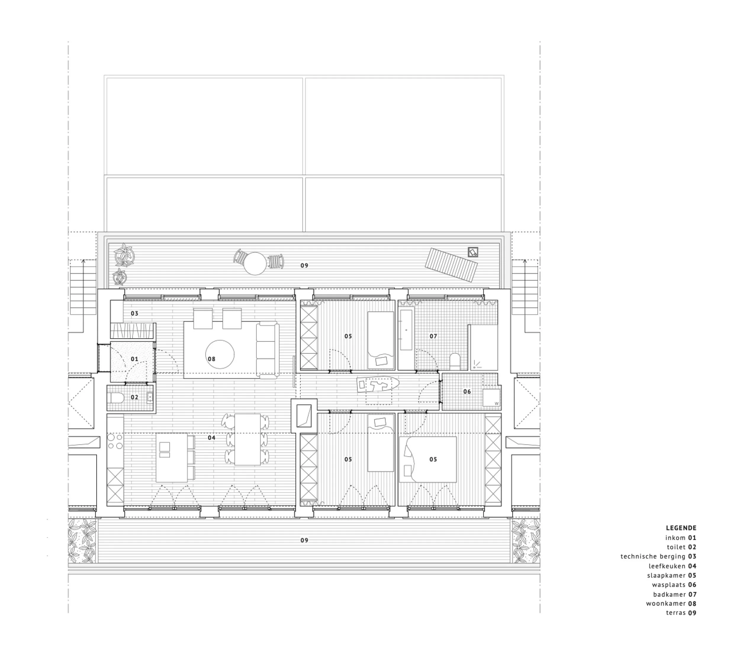
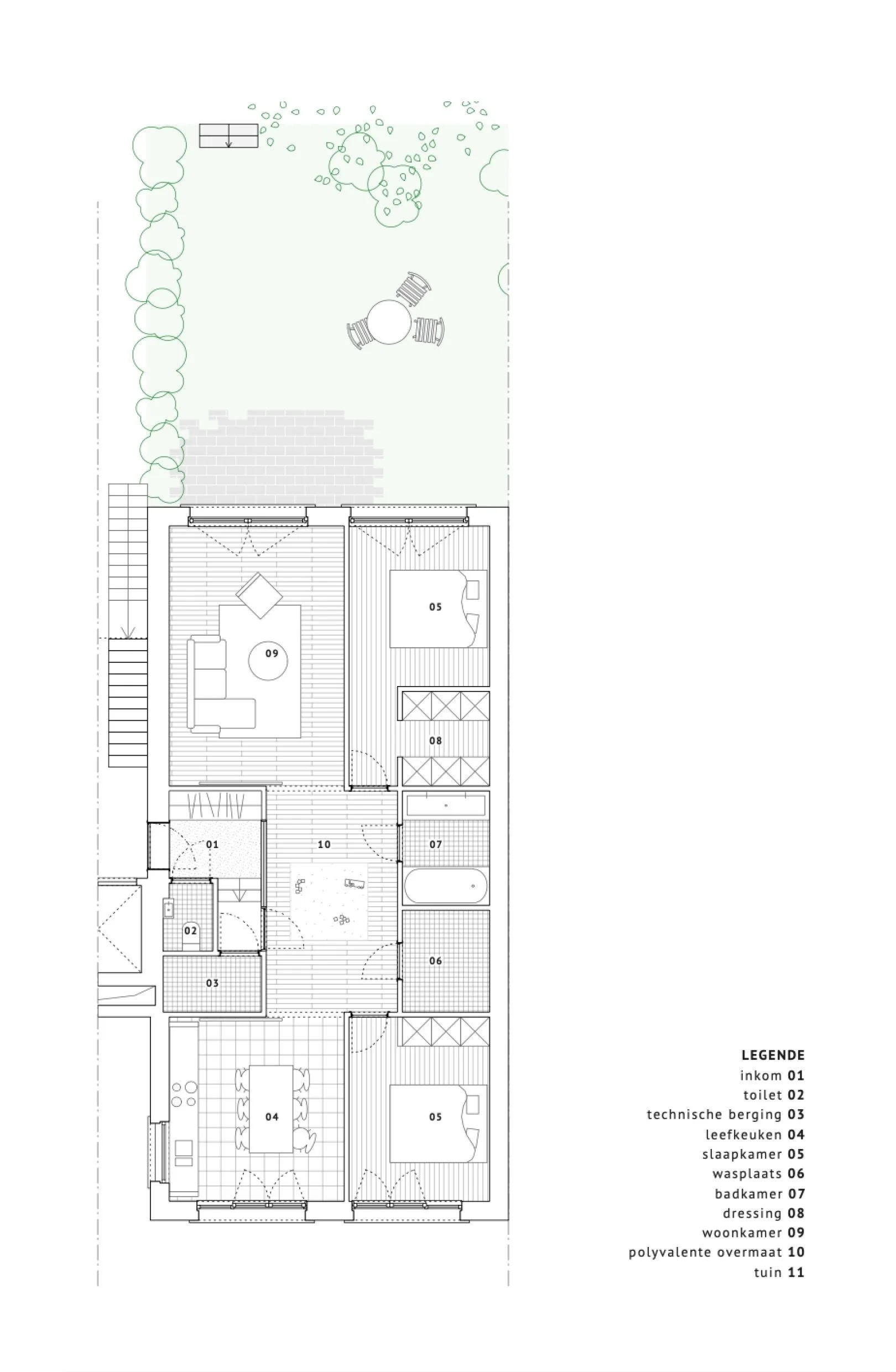
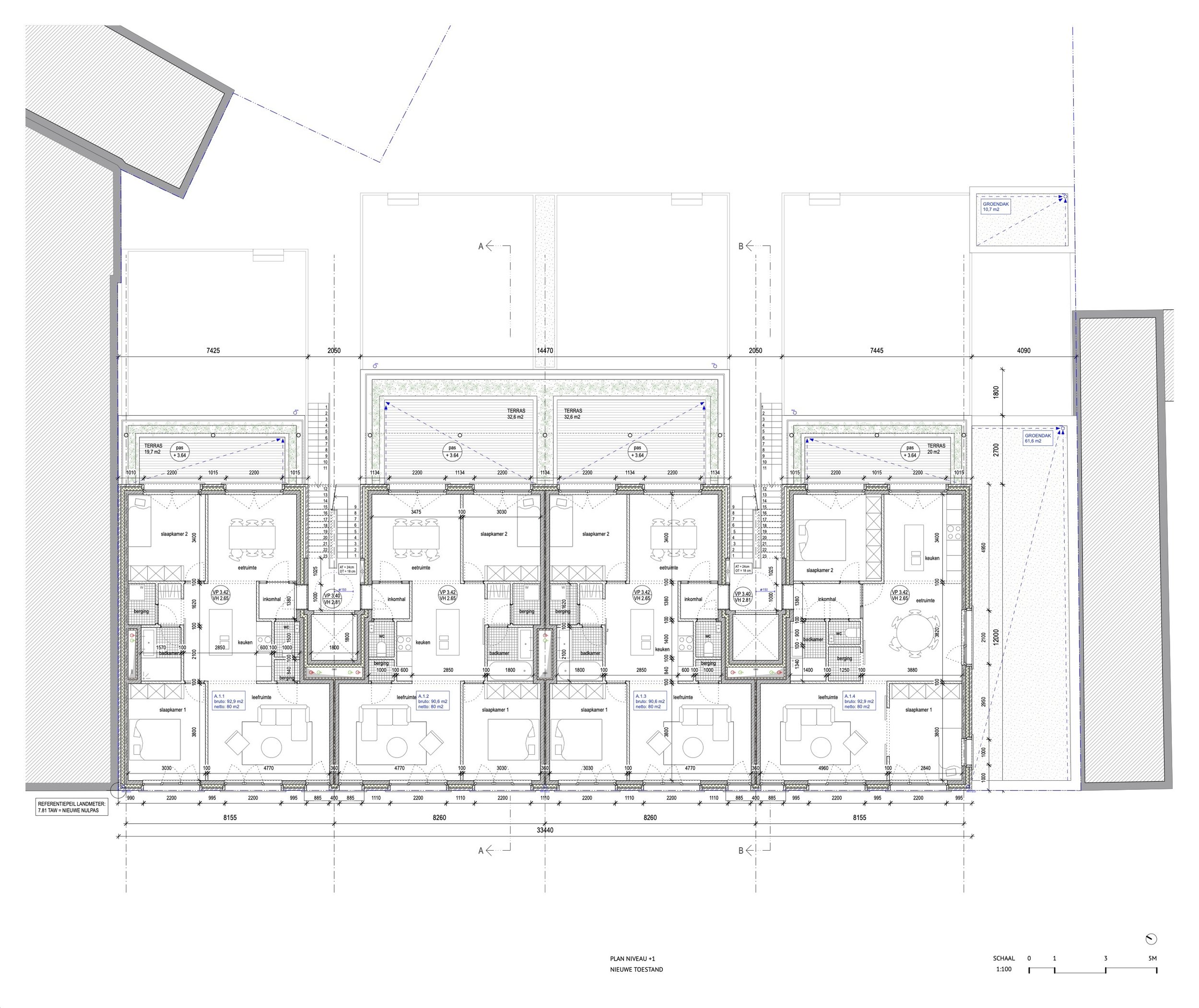
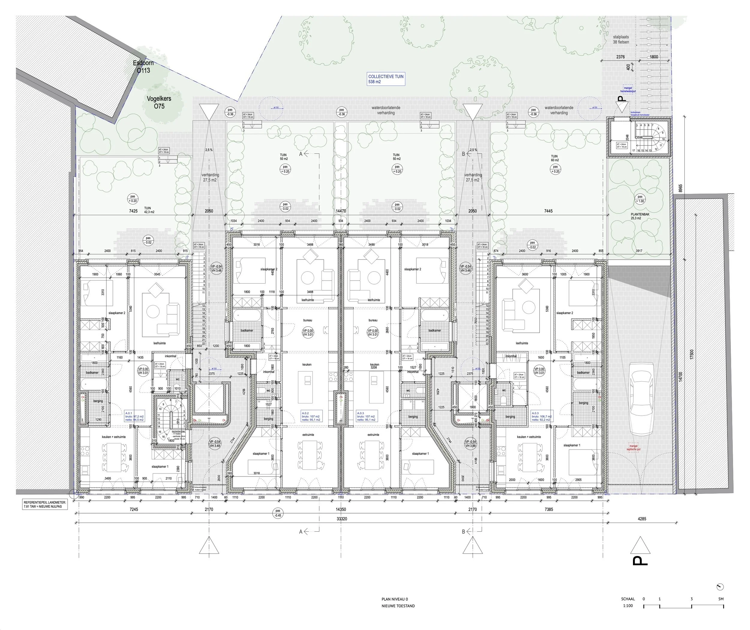
De structuur wordt ingevuld met kwalitatieve woningen die eenvoudig aanpasbaar door de overmaat in de open plannen. In het ontwerp is bijzondere aandacht besteed aan de verhouding tussen privaat en collectief om het perceel zo goed als mogelijk te benutten. De doorzonwoningen, die bereikbaar zijn via buitencirculatie, zijn optimaal met de collectieve tuin verbonden.

Previous
Previous

PRINCE

Next
Next

PEGODE