BIART
MEERGEZINSWONING OP EEN STRATEGISCHE HOEKLOCATIE
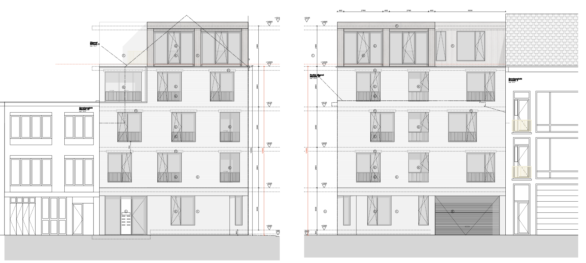
Op de hoek van de Biartstraat en de Bronstraat positioneert dit hoekgebouw met acht appartementen zich op een strategische locatie in een rustige woonwijk in het zuiden van Antwerpen. De ligging aan de binnenzijde van de ring garandeert een vlotte bereikbaarheid en vormt een sterke uitvalsbasis voor zachte mobiliteit, met het stadscentrum en diverse voorzieningen op comfortabele fiets- en wandelafstand. Hierdoor sluit het project aan bij de stedelijke ambitie om duurzame verplaatsingsmodi te stimuleren en de afhankelijkheid van de auto te beperken.
Opdrachtgever: Vanhalme
Locatie: Antwerpen
Oppervlakte bovengronds: 600m2
Programma: huisvesting
Aannemer: Verelst
Studiebureau: Bureau Van Ransbeeck - COTECON - Studiebureau Kris Van Craen
Tijdlijn ontwerp - vergunning: februari 2014 - september 2014
Tijdlijn aanbesteding - uitvoering: september 2014 - maart 2016
Projectteam ENOF: Luis Zamorano Garrote, Elien Broeckx
De volumetrische opbouw van het gebouw heeft een klassieke hiërarchie: plint, lijf en kroon. Deze geleding sluit aan bij de schaal en geleding van de omliggende bebouwing. De gevelmaterialen zijn stedelijk en robuust. De verhoogde gelijkvloerse woonfunctie draagt bij aan een leesbare overgang tussen het publieke domein en de private woonomgeving. De teruggetrokken dakverdieping beperkt de visuele impact van het gebouw en zorgt voor een zorgvuldige aansluiting op het aanpalende buurgebouw, met respect voor het bestaande straatbeeld.